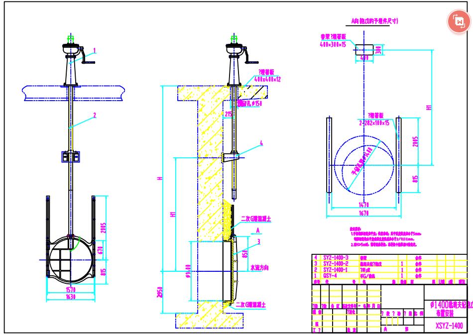
SYZ1400鑄鐵圓閘門安裝圖下載
SYZ1400鑄鐵圓閘門安裝圖下載

服務熱線13852217951
SYZ1400鑄鐵方閘門安裝圖紙下載 ,我們提供DWG圖紙下載查閱,CAD軟件可查閱。
圖紙下載:
SYZ-1400鑄鐵鑲銅圓閘門.rar

SYZ1400鑄鐵方閘門用戶使用與維護
1、 使用手動啟閉機時,要用力均勻,不要在關閉時用力過猛以防損傷定位裝置。
2、 要定時給絲桿及啟閉機加潤滑油脂。
3、 每年需對閘門作一次油漆、防腐處理。
4、 對于非雙向閘門不可承受純反向水壓。
本文來自于:www.wjgyp.com.cn